उत्पाद विवरण
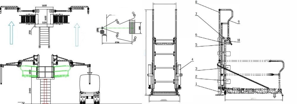
लोडिंग प्लेटफॉर्म के लिए फोल्डिंग सीढ़ियों का उपयोग लोडिंग रैक से टैंक कारों या रेल टैंकरों तक की दूरी को पाटने के लिए किया जाता है। उनका उपयोग अन्य समान अनुप्रयोगों के लिए भी किया जा सकता है। सीढ़ी में कार्बन स्टील का निर्माण होता है, जो हैंड्रिल, एंटी-स्किड स्टेप्स और स्प्रिंग सिलेंडर बैलेंसिंग के साथ पूरा होता है। संपर्क ब्रैकेट सुरक्षा के लिए तेल प्रतिरोधी रबर बंपर के साथ कवर किया गया है। असेंबल न होने पर छोटे स्थान पर कब्जा करने के लिए इसके फ्रेम को सपाट मोड़ा जा सकता है।
चयन विनिर्देश
1
सैट-3
3 steps folding stairs - with/without safety cage
2
सैट-4
तह सीढ़ियों के 4 कदम - सुरक्षा पिंजरे के साथ/बिना
3
सैट-5
5 कदम तह सीढ़ियाँ - सुरक्षा पिंजरे के साथ/बिना
| क्रमिक संख्या | ||||
| सैट/एचडीटी | ||||
| कदम | ||||
| 3 | 3 कदम, विस्तारित लंबाई 1250MM | |||
| 4 | 4 कदम, विस्तारित लंबाई 2050MM | |||
| 5 | 5 कदम, विस्तारित लंबाई 2150 मिमी | |||
| चौड़ाई | ||||
| A | चौड़ाई 600 मिमी | |||
| B | चौड़ाई 800 मिमी | |||
| सुरक्षा पिंजरा | ||||
| 0 | सुरक्षा पिंजरे के बिना | |||
| 1 | सुरक्षा पिंजरे के साथ | |||
सामग्री
कार्बन स्टील गैल्वनाइजिंग, स्टेनलेस झंझरी
प्रयोग
निर्माण परियोजना, तेल परियोजना, बंदरगाह, बिजली संयंत्र, जल संयंत्र, रक्षा परियोजना, रासायनिक कारखाना आदि।
उत्पाद निर्माण
प्लेटफ़ॉर्म के लिए तह सीढ़ियाँ 3, 4 और 5 चरणों के कॉन्फ़िगरेशन में उपलब्ध हैं, सुरक्षा टोकरी के साथ या उसके बिना। इकट्ठे नहीं होने पर एक छोटी सी जगह पर कब्जा करने के लिए सभी को फ्लैट किया जा सकता है।
सुरक्षा पिंजरे के बिना तह सीढ़ियाँ
उत्पाद लाभ
कार्बन स्टील जस्ती
रखरखाव मुक्त असर
गिरफ्तार करने वाला उपकरण
हैंडरेल्स
सहायक फ्रेम
सुरक्षा के लिए विभाजित कदम
संपर्क ब्रैकेट
जस्ती, विरोधी स्किड कदम
स्प्रिंग सिलेंडर संतुलनलोकप्रिय टैग: मंच, चीन, आपूर्तिकर्ताओं, निर्माताओं, कारखाने, अनुकूलित, मूल्य, उद्धरण, स्टॉक में लोड करने के लिए तह सीढ़ियों
